高压磁控电抗软起动柜
高压磁控电抗软起动柜
产品价格:¥135000(人民币)
  • 规格:MMRS-500/10
  • 发货地:湖北襄阳市
  • 品牌:
  • 最小起订量:1台
  • 免费会员
    会员级别:试用会员
    认证类型:企业认证
    企业证件:通过认证

    商铺名称:湖北省兆复安电气自动化科技有限公司

    联系人:商金宸(先生)

    联系手机:

    固定电话:

    企业邮箱:18271228725@139.com

    联系地址:襄阳市樊城区中航大道南站

    邮编:441000

    联系我时,请说是在新塑胶网上看到的,谢谢!

    商品详情

      一、概述

      MMRS高压磁控电抗软起动柜(以下简称MMRS软起动柜)系列产品是采用磁饱和电抗器研发的固态软起动柜,适用于大中型鼠笼式异步电动机或同步电动机的起动。按不同的负载对象可选择恒流起动方式或电压斜坡起动方式;装置采用计算机仿真技术,整个起动过程可预测、可控制、易调整;友好的人机界面方便参数的设定、调整、查询;安全稳定性高,使用寿命长;重复使用性好,起动性能不受环境温度影响;自动化程度高,操作方便。

      MMRS高压磁控电抗软起动柜适用于水泥建材、冶金/采矿、石油/化工、电力、医药、煤炭等行业,适用对象为风机、压缩机、水泵、提升机、泥浆泵等,适用于电压等级6kV、10kV功率范围到10000kW的各种大中型高压电动机的降压软起动。

      二、工作原理

      MMRS高压磁控电抗软起动柜工作原理:通过闭环控制系统,调整自耦直流励磁绕组中直流电流的大小,平滑改变磁控电抗器的感抗,使感抗在预定的时间内由大到小自动无级减小,实现电动机软起动。

      组成:该产品装置由三部分组成:

      A、高压工作绕组;

      B、自耦直流励磁统组;

      C、二次控制回路。

       

      感抗计算公式:XL=ωL=μ*W*C ················· ①

      公式中:XL:高压绕组的阻抗。

      μ:铁芯的磁导率。

      W:频率,即2 π f ,常数。

      C:常数,由铁芯材料及绕组匝数决定。

      自励式磁控软起动的工作原理就足通过改变自耦直流励磁绕组中直流电流大小改变①式中 μ 的大小,来改变串接于电动机定子回路的绕组阻抗XL,达到软起动的目的。

      公式中μ的大小由自耦控制绕组中直流电流的大小决定,亘流越大,μ 越小,XL越小:直流越小,μ 越大,XL越大,直流电流的大小是通过改变二次控制回路中可控硅的导通角来实现的。

        工作过程如下:在电动机起动前,通过人机界面设置起动参数,把期望的起动电流写进磁控控制器。电动机起动时,通过闭环互感器取样,磁控控制器比较设置电流和实际起动电流后发出触发脉冲,通过调节可控硅的导通角控制磁控软启动装置阻抗大小,从而改变电动机的端电压,实现电动机的恒流软起动。如果现场工况改变或起动电流并不理想,只需重新设置起动电流值,即可实现电动机在新的设定值下实现恒流软起动。

       

      三、性能特点

      1、磁饱和电抗器是由特殊工艺结构设计的新型电抗器,由于电抗器是自励式电抗器,不需大容量励磁电源,具有可调范围大、体积小、噪音低、功率损耗小等优点。

      2、磁饱和电抗器采用紧耦合结构,可控性好,阻抗可调至初始阻抗的2%;

      3、采用专门的滤波装置,无谐波污染;

      4、先进的磁屏蔽技术,无漏磁;

      5、采用国内领先的计算机仿真技术,使整个起动过程可预 测、可控制、可调整;同时加设电流反馈装置构成闭环控制,使系统的特性曲线较硬,可适应恒转矩负载起动。

      6、主回路采用电抗器与电机串联方式,实现电压平滑调节,具有恒流起动,斜坡电压软起等起动方式;起动时具有过流、 欠流保护功能,起动电流倍数可设置,以满足不 同工况的要求;

      7、友好的人机界面,起动参数的设定、调整灵活,方便查阅起动历史曲线,操作简单,使用方便。

      8、起动电流可在1.5le~4le任意选择(视负载不同),起动时可确保电网压降最小,无二次浪涌电流冲击;

      9、起动时电机均匀加速,无机械冲击;

      10、重复使用性好,起动性能不受环境温度影响;

      11、免维护,使用奔命长,

      12、可实现软停止(可选)。

       

      四、主要技术参数

      额定电压 

       6kV10kV(其它电压等级可定制)

      额定功率  

       100-10000kW

      限流设置范围 

       1.5Ie-4.5Ie

      控制电源  

       AC220V(其它电压等级可定制)

      连续起动次数 

      1-3/小时

      起动时间 

        5-100

      防护等级  

      IP20

       

      五、型号说明

       

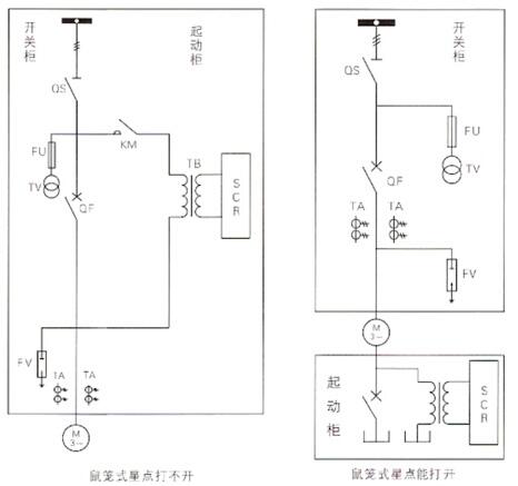
      六、一次方案

       

      七、执行标准

      1、《3-35KV交流金属封闭开关设备》                    GB/T3979-1991

      2、《电控设备,笫二部分:装有电子器件的电控设备》      GB/T3979-1989

      3、《外壳防护等级,IP代码》                            GB4208-1993

      4、《磁控电抗软起动装置》                                 Q/MMRS-2016

       

      八、环境条件

      1、温度:-30°C~40°C;

      2、空气相对湿度不超过90%;

      3、海拔离度不超过1000m,超过时应提供海拔高度;

      4、安装地点无腐蚀金属或破坏绝缘的气体。

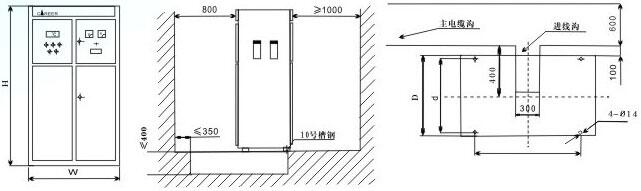
      九、产品规格

       

      十、安装基础图

       

      十一、订货须知

      请提供下列资料:

      1、     电动机型号、额定功率、额定电压、额定电流

      2、     定子绕组接法(星点可否打开)

      3、     拖动负载种类、起动频繁程度

      4、     如需提供设计计算书,则需提供电动机的拖动负载特性:Iq/IeMq/MeMmax/MeGN2及电网短路容量和工况说明

      5、     配套开关柜进出线方式

      6、     设备表面颜色

       

    0571-87774297